Open/Close Toolbox
Format: Plan
Linked To
Copyright
General Use Special Collections Copyright
Please contact Special Collections if you are a subject of an item, or know a subject of an item, and have cultural or other reservations about an item being made available on this website and would like to discuss this with us.
This item can be used for study and personal research purposes. If you wish to reproduce this item for any other purpose please contact the University of Newcastle Library's Special Collections.
If you have any further information about the item, please contact us.
Click on the image to add
a tag or press ESC to cancel
a tag or press ESC to cancel
loading google map....
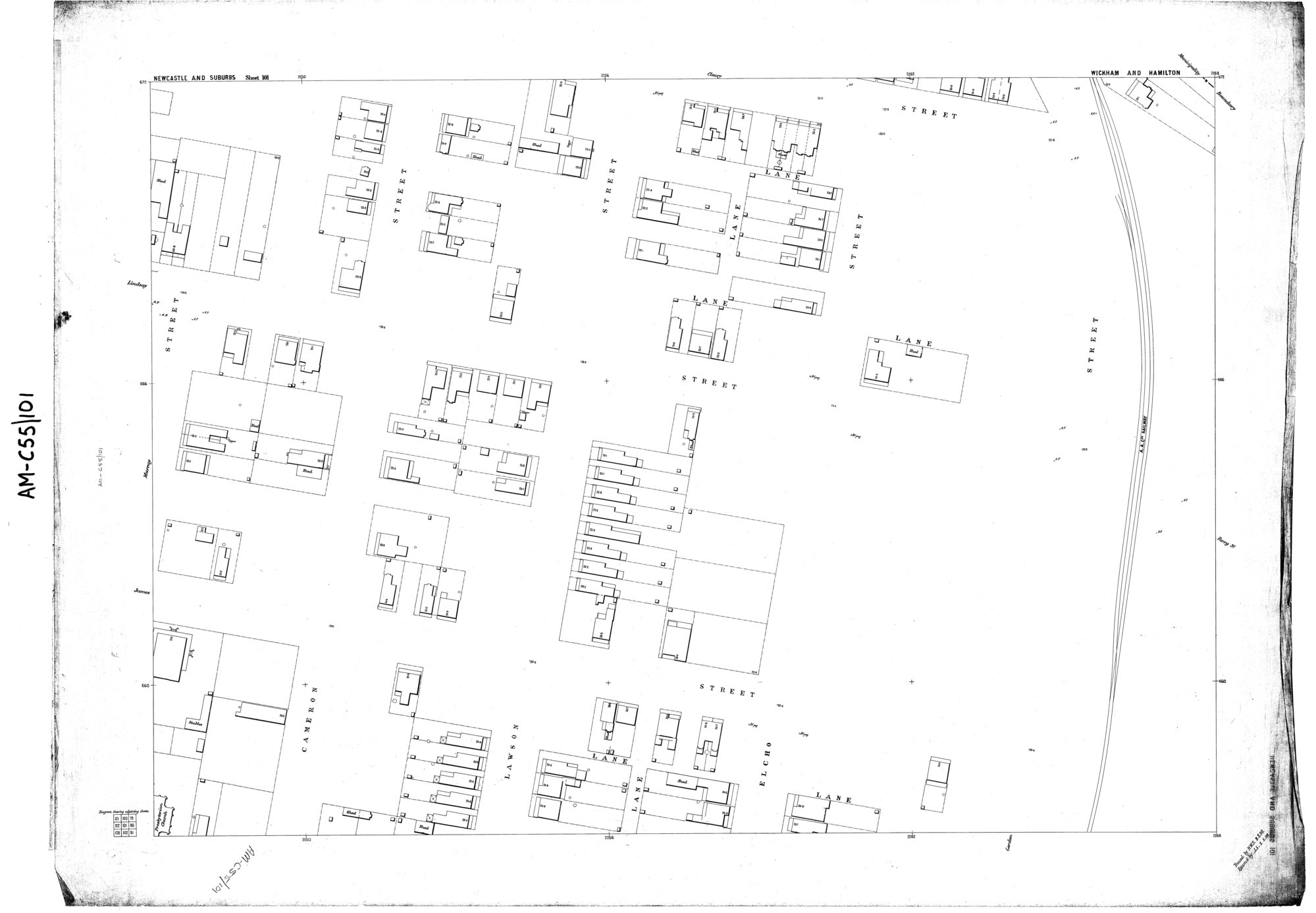
Newcastle and Suburbs Sheet 101 - Wickham and Hamilton, 1898 (2nd May 1898), [101-AM-C55-101]. Living Histories, accessed 19/03/2026, https://livinghistories.newcastle.edu.au/nodes/view/95293




